atelier d'architecture et de paysage

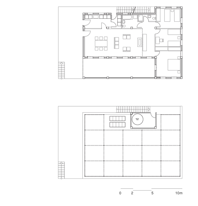
A house for 30 000 usd, Sarada, Lebanon

Category Name - Competitions and consultancies

Gallery

Project summary

A house for 30 000 usd, Sarada, Lebanon

Projects

House of Arts and Culture, Beirut,
Refrigerated warehouse, Tannourine, Lebanon
Summer house at Bir el Khrab. Jezzine, Lebanon
Civic Center for Halat, Lebanon
Military hospital of Ouargla, Algeria
3 houses at Ain el Jaouzé, Tannourine, Lebanon
32 summer houses and entertainment facilities, Balaa Lebanon
The Engineer's Garden, a counter project. Damour, Lebanon
THE LOOP OF INNOVATION, KIC. Tripoli, Lebanon