atelier d'architecture et de paysage

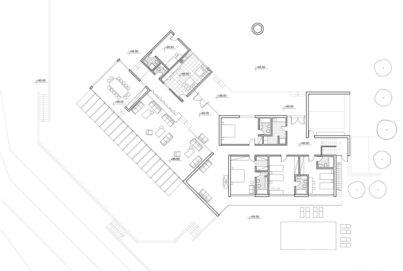
Summer house at Bir el Khrab. Jezzine, Lebanon

Category Name - Competitions and consultancies

Gallery

Project summary

Projects

A house for 30 000 usd, Sarada, Lebanon
House of Arts and Culture, Beirut,
Refrigerated warehouse, Tannourine, Lebanon
Civic Center for Halat, Lebanon
Military hospital of Ouargla, Algeria
3 houses at Ain el Jaouzé, Tannourine, Lebanon
32 summer houses and entertainment facilities, Balaa Lebanon
The Engineer's Garden, a counter project. Damour, Lebanon
THE LOOP OF INNOVATION, KIC. Tripoli, Lebanon