atelier d'architecture et de paysage

Office Building and Garden, Mkalles Lebanon

Category Name - Built projects

Gallery

Project summary

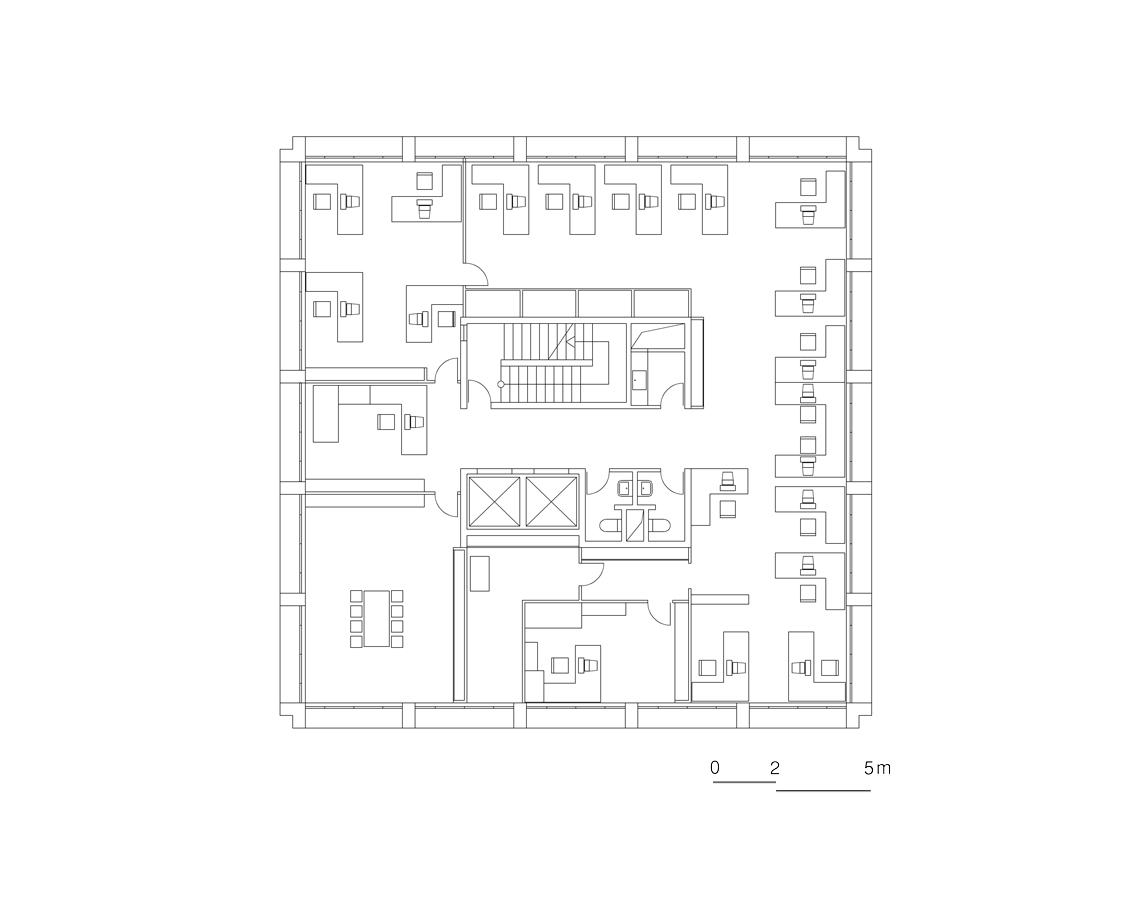
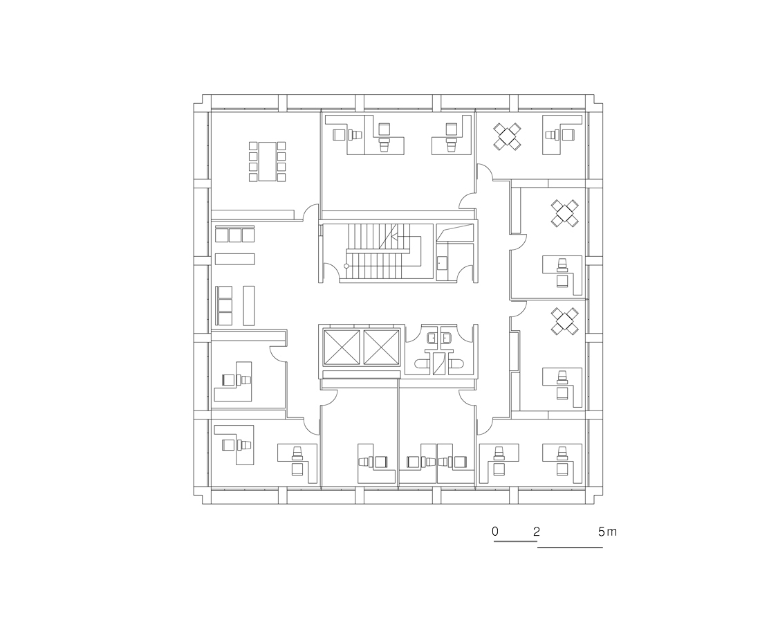
In a suburban district of office buildings and small industries, the project articulates the interests of both, private investment and the reclassification of public space. Before the intervention, the client had already submitted the permit for the office building and construction of the basement had already been completed. Thus the project consisted of redesigning the facades and redistributing the office floors for the headquarters building of a public works company. In order to enhance the image and branding of the company, it was necessary to emphasize the value given to the exterior spaces. Three zones were joined to form a publicly accessible garden around the perimeter of the building, those are: the building setback zone, the zone making the roof of the underground parking, and the zone of an abandoned public lot.

Projects

Terrace Villa n°1, Chatine, Lebanon
Hilton Hotel, Beirut
Research and Sport facilities Rennes France
Terrace Villa n° 2, Chatine Lebanon
Terrace Villa n° 3, Baskinta, Lebanon
Terrace Villa n°4, Chatine, Lebanon
Beit El Jabal
Fleur du Liban